Pfaffenhofen an der Ilm

2-ZKB Erdgeschoss-Whg. mit ca. 9,90 m² Süd-Balkon, elektr. Rollläd., Fußbodenhzg. u. Videosprechan.!

Jetzt anfragen

Allgemeine Informationen

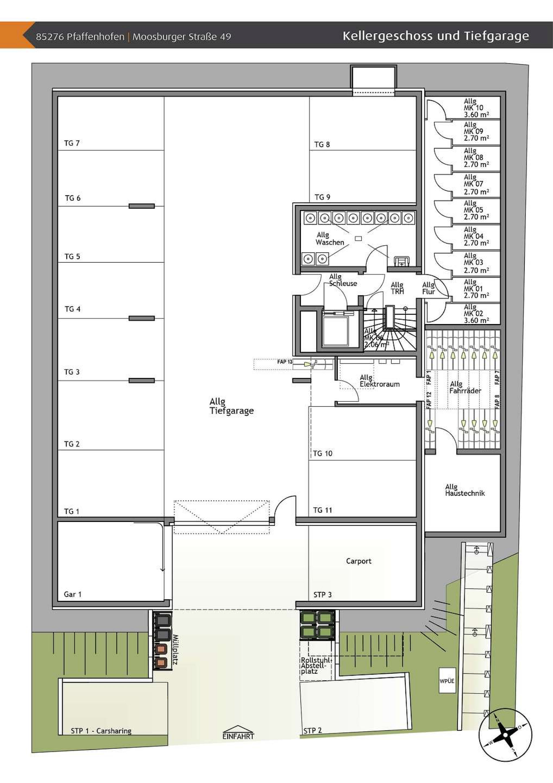
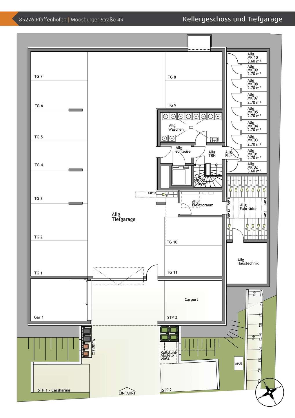
Bei der angebotenen Wohnung handelt es sich um eine 2-Zimmer Wohnung im Erdgeschoss, mit einer Terrasse nach Osten, Süden und Westen ausgerichtet, mit ca. 9,90 m² Grundfläche. Die Bauausführung erfolgt in massiver Ziegelbauweise mit Wärmedämmverbundsystem sowie 3fach verglasten Fenstern. Beheizt wird die Wohnanlage über eine Wärmepumpe. Der Baubeginn ist für Anfang 2024 vorgesehen, die Fertigstellung wird ca. Ende 2025 erfolgen. Auf dem Grundstück entsteht ein Mehrfamilienhaus mit Tiefgarage und Aufzug, mit insgesamt 10 Wohneinheiten. Auf Wunsch erhalten Sie gerne das Gesamtexposé inkl. Baubeschreibung und Preisliste. Energieausweis: Der Energieausweis wird gerade erstellt und liegt zur Besichtigung vor.

Wohnobjekt:
Ja
Zum Kauf:
Ja
Objektart:
Wohnung
Typ:
Erdgeschoss
PLZ und Ort:
85276 Pfaffenhofen an der Ilm
Adresse:
auf Anfrage
Etagen Anzahl:
2
Kaufpreis:
412.000,00 €
Stellplatz Tiefgarage Kaufpreis:
25.000,00 €
Stellplatz Tiefgarage Anzahl:
1
Wohnfläche:
64,38 m²
Nutzfläche:
69,33 m²
Anzahl Zimmer:
2,0
Anzahl Schlafzimmer:
1,0
Anzahl Badezimmer:
1,0
Anzahl Balkone:
1,0
Anzahl Stellplätze:
1
Kategorie der Ausstattung:
Gehoben
Befeuerung mit Strom:
Ja
Personenfahrstuhl:
Ja
Stellplatz in Tiefgarage:
Ja
Baujahr:
2024
Zustand:
Erstbezug

Ausstattung

  • Aufzug
  • Terrasse mit ca. 9,90 m² Grundfläche nach Osten, Süden und Westen ausgerichtet
  • Fußbodenheizung mit Raumthermostaten
  • Elektrische Rollläden
  • Videosprechanlage
  • Bodengleich geflieste Dusche
  • Hochwertiger Waschtisch mit Vigour-Designunterschrank (Model Clivia in 6 Farbvarianten)
  • Bad mit Fenster
  • Küche mit Fenster
  • Echtholzböden und hochwertige Fliesen
  • Gemeinschaftswaschraum im Keller

Lage

Zentrale Lage in der Moosburger Straße 49 in Pfaffenhofen. Der Bahnhof sowie das Zentrum von Pfaffenhofen, sind fußläufig in Kürze zu erreichen. Eine Stadtbus-Haltestelle befindet sich in unmittelbarer Nähe.

Sonstiges

Dieses Exposé ist eine Vorabinformation. Vorstehende Angaben beruhen auf Auskünften der Eigentümer oder Bauträger, wir übernehmen hierfür sowie für Tippfehler keine Haftung! Ein Rechtsverbindlicher Kaufvertrag kommt nur durch notarielle Beurkundung zustande. Die Maklerprovision und Kaufnebenkosten errechnen sich aus dem beurkundeten Kaufpreis.

Anfrage